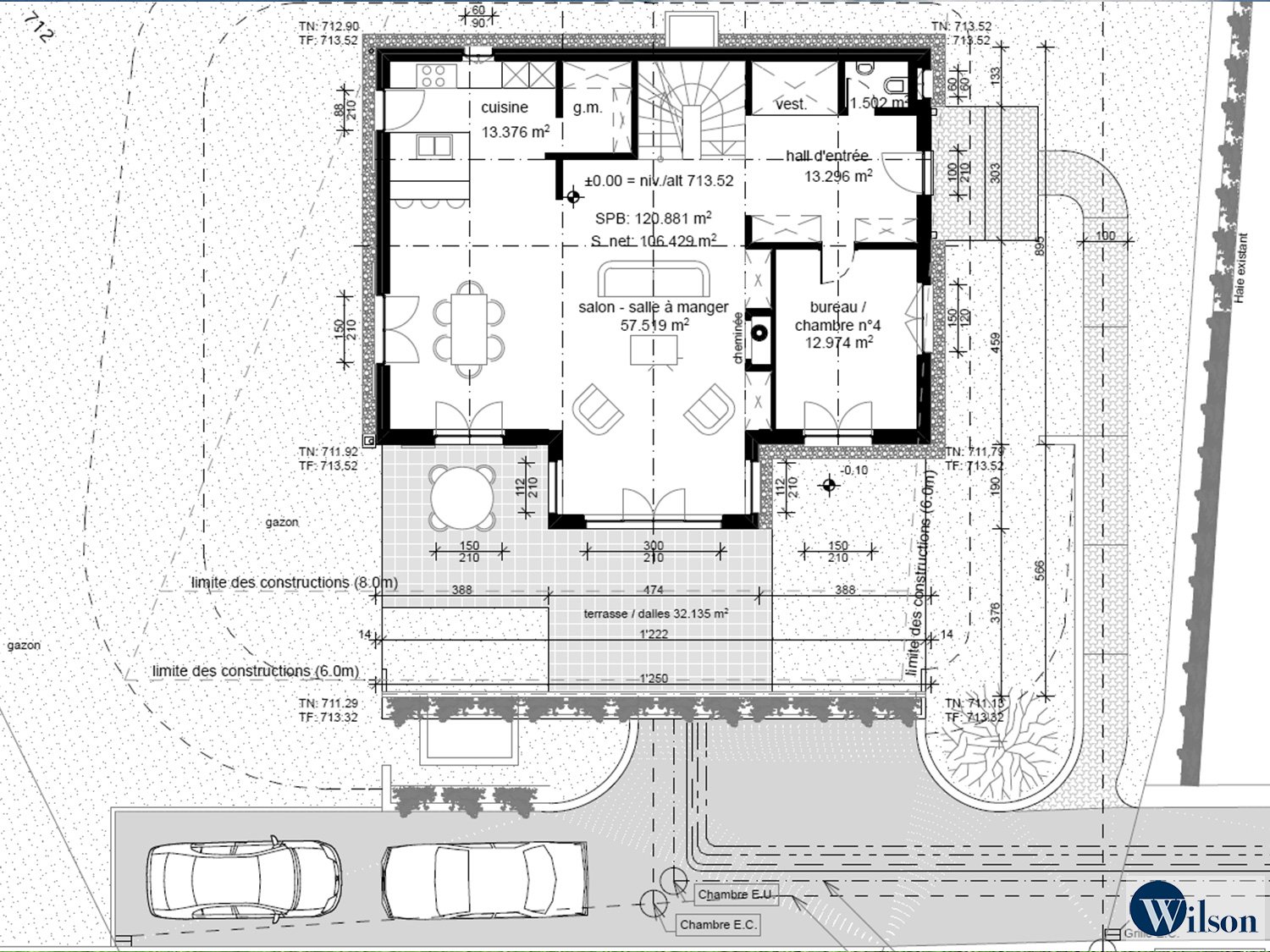
Construction d’une maison de 6 ½ pièces sur une agréable parcelle en pente douce de plus de 1’500 m2 en limite de forêt avec une magnifique vue sur le lac et les Alpes au sein d’un quartier calme et verdoyant.
Ce projet «sur mesure» a été élaboré afin de créer une maison familiale confortable, lumineuse, jouissant d’espaces généreux et ouverts sur l’extérieur.
Sa surface est de 200 m2 avec un sous-sol comprenant un garage double.
Le chauffage est assuré par une pompe à chaleur, sa distribution se fait par le sol et la production d’eau chaude par des panneaux solaires posés en toiture. La construction est réalisée dans un style architectural traditionnel avec des matériaux de qualité.